Планы комплексного развития территорий продолжают утверждать в Новокузнецке. На этот раз новый квартал строить будут в Заводском районе.
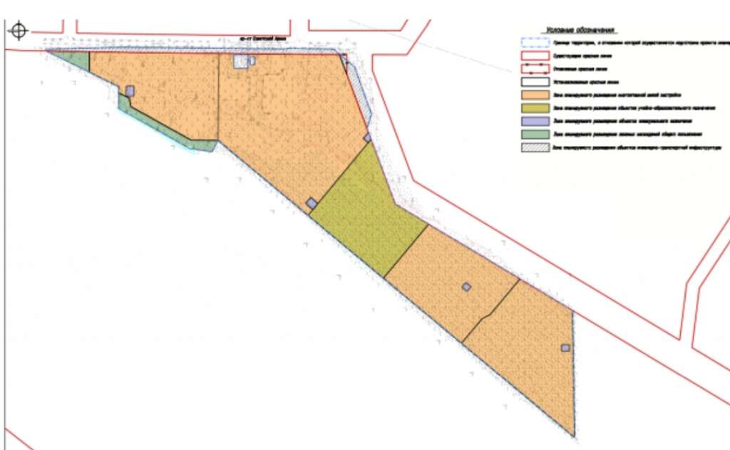
Речь про КРТ «Озерный-2», запланированный ещё в 2024 году. Как следует из утверждённого плана застройки, он расположится вдоль проспекта Советской Армии, на берег Чёрного озера.
На 16 гектарах построят 4 16-этажки и один садик на 300 мест. Парковку на 900 машин для экономии места уберут под землю, всего в микрорайоне планируется поселить 4,4 тысячи человек.

Школ, стадионов и спорткомплексов на территории не планируется. Считается, что для жителей хватит уже имеющихся объектов.
Кроме того, не до конца решён вопрос с "Озёрным-1", который по плану должен расположиться по соседству. Его проект до сих пор не утверждён.
Источник: sport-42











Комментарии
Пока нет комментариев